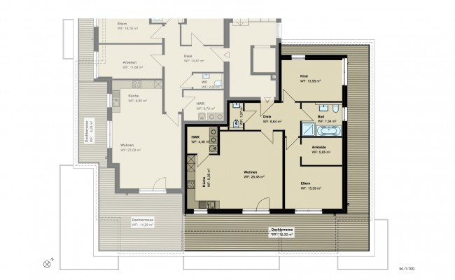
Einfach ein Traum, diese lichtdurchflutete Neubauwohnung mit Penthouse-Charakter! In diesen ca. 108 qm großen Wohnkomfort im westlichen Gebäude des Pankratius Carrés werden Sie einziehen und sich sofort wohl fühlen. Ihre neue 3,5-Zimmer-Wohnung erreichen Sie, in dem Sie direkt aus der Tiefgarage mit dem Aufzug vor Ihre Wohnungstür fahren. Vom großzügigen, langgezogenen Eingangsbereich aus werden alle Zimmer erschlossen.
So haben Sie Zugang zu Ihrem Wohn- und Esszimmer mit Südausrichtung mit der daran angrenzenden offenen Küche. Auch das Kinder- bzw. Gäste-/ oder Arbeitszimmer ist ähnlich großzügig gestaltet wie Ihr modern gefliestes Wannenbad mit separater Rain-Shower-Dusche. Ein weiteres Highlight dieser Wohnung ist sicherlich das Schlafzimmer, das Sie zukünftig betreten, indem Sie an Ihrem Ankleidezimmer vorbei gehen. Zum Entspannen genießen Sie die Süd-Sonne auf Ihrer mit gut 60 qm wunderbar großen, wohnungs-umlaufenden Dach-Terrasse.
Abgerundet wird die Wohnung durch ein Gäste-WC sowie einen Hauswirtschafts- und Abstellraum mit Anschlüssen für Waschmaschine und Co. Der mühselige und häufige Weg in den Keller gehört damit der Vergangenheit an.
Die hoch moderne energetische Bauweise des Pankratius Carrés in Verbindung mit dessen Wärmekonzept inkl. zentraler Luft-Wasser-Wärmepumpe sorgt gemeinsam mit der für jede Wohnung individuell zu steuernden Wohnraumlüftung inkl. Wärmerückgewinnung nicht nur stets für ein optimales Raumklima, sondern hilft Ihnen gleichzeitig Energie zu sparen.
Jederzeit frisch gelüftete und zudem angenehm warme Zimmer: Das ist Ihr neuer, absolut luxuriöser Wohnkomfort, der gleichzeitig Ihre Nebenkosten senkt.
Unterstrichen wird dieser Komfort in Ihrer neuen Wohnung dadurch, dass Sie keine störenden Heizkörper mehr vorfinden, sondern eine Fußbodenheizung mit Einzelraumregelung Ihre Räume mit Ihrer Wunschtemperatur versorgt. Selbstverständlich runden sowohl der erwähnte Tiefgaragenplatz als auch ein eigener Kellerraum mit weiteren Abstellmöglichkeiten das Raumangebot ab.
